Beschrijving
Gelegen in Mathenesse, centrale locatie; zo in de buurt van het Centrum, Delfshaven en Schiedam. Goede verbinding naar uitvalswegen A4/A13. Appartement is gerenoveerd in 2021, beschikt over een label A!
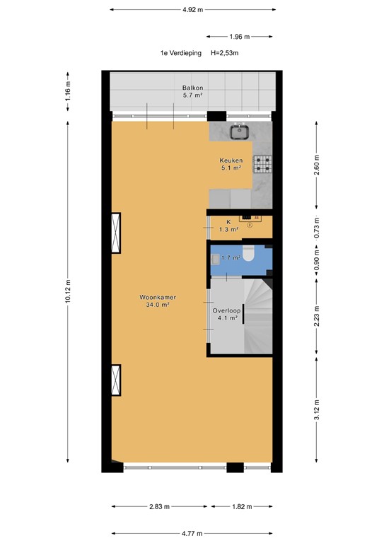
Entree op straatniveau, eigen opgang naar de eerste verdieping. De woning beschikt over 4 slaapkamers, een woonkamer met open keuken, badkamer, 2 toiletten en een zolder (vliering). Keuken beschikt over alle moderne gemakken, waaronder koel/vriescombinatie, vaatwasser, spoelbak, afzuigkap, inductiekookplaat en combi oven/magnetron. In de hal bevindt zich het aparte toilet met fonteintje. Vanuit de woonkamer toegang tot het balkon op de eerste etage.
Op de tweede etage zijn de drie slaapkamers gelegen, tevens met toegang tot een balkon. De badkamer beschikt over een douche, bad, toilet en dubbele wastafel. Vliering bovenin bevindt zich de kleine (bij)slaapkamer en opstelplaats voor de cv-ketel.
*** Aan deze tekst en plattegrond kunnen geen rechten worden ontleend.***
Indeling
Zie voor de afmetingen graag de plattegrond.
Bijzonderheden
• Oppervlakte ca: 90 m2
• EPA-label: Energie label: A, geldig tot 2031
• Installaties: CV ketel
• Dit appartement is in een goede staat en voorzien van;
– Kunststof raamkozijnen met dubbelglas
– Laminaatvloer (met ondervloer)
– Badkamer met douche, bad en wastafelmeubel
– Keuken met diverse inbouwapparatuur
– CV ketel installatie met radiatoren
- Eigen grond
- VvE is niet actief, wordt geen maandelijkse bijdrage betaald, wordt een offerte opgevraagd voor professioneel beheer.
- Berging gelegen in de achtertuin
- Niet-bewonersclausule van toepassing
- Asbestclausule van toepassing
- Ouderdomsclausule van toepassing
- As is, Where is clausule van toepassing
- Projectnotaris Rosenberg Polak Den Haag
- Oplevering in overleg
* Aan deze tekst en plattegrond kunnen geen rechten worden ontleend *
Plattegronden
181983886_engelsestraat_1_1e_verdieping_first_design_20260206_9f9b6f.jpg
181983886_engelsestraat_1_2e_verdieping_first_design_20260206_0400a1.jpg
181983886_engelsestraat_1_3e_verdieping_first_design_20260206_e50204.jpg
181983886_engelsestraat_1_begane_grond_first_design_20260206_5647a8.jpg