Beschrijving

Midden in het bruisende hart van Den Haag, vind je dit kluspand met een zee aan potentie gelegen aan de Van Hogendorpstraat 7-A. Dit gave bovenhuis, verdeeld over twee verdiepingen, biedt de perfecte kans om een heerlijk huis van te maken. In de woonkamer zijn de mooie oude balken nog te zien.

Het gehele dak is vernieuwd en tevens geïsoleerd. Dakgoten zijn hierbij ook vernieuwd. Het energielabel is hierdoor verbeterd naar een C! Kopers zouden de woning intern moeten renoveren. 

De woning is vlakbij gelegen bij een mooi rustig plein tussen twee statige en recent compleet gerenoveerde pleinen; het Oranjeplein en het Huygenspark. In de buurt (Het Haagse Quartier Latin genoemd) zijn tal van winkeltjes, supermarkten en volop restaurants o.a. aan de Bierkade (Avenue Culinair) met leuke terrassen op de gracht. Tram- en busverbindingen liggen om de hoek en het Station Hollands Spoor ligt eveneens op loopafstand. Vanuit deze woning bereikt u op eenvoudige wijze de gezelligheid van de binnenstad, terwijl u zelf in een oase van rust woont.

Indeling

Entree op straatniveau, gezamenlijke trap naar boven (gedeeld met 1 ander appartement). 
Entree woning met eigen trap naar de tweede etage. Twee etage beschikt over aparte woonkamer, keuken, apart toilet en badkamer. Interne trap naar de derde etage met momenteel een slaapkamer. Er is geen buitenruimte aanwezig. 

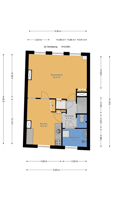
Voor de exacte maatvoering verwijzen wij u naar de plattegronden.

Bijzonderheden

- Woonoppervlakte 61m2, meetrapport beschikbaar;
- Bouwjaar 1850;
- Energielabel C, geldig tot 2036
- VvE recent opgericht (in 2026), volgens begroting maandelijkse bijdrage € 166,54
- VvE is ingeschreven in de KvK 
- Pand is recent gesplitst; 
- Dak is vernieuwd en geïsoleerd eind 2025; 
- Dakgoten zijn vernieuwd;

- Projectnotaris Quadrant Notarissen Den Haag
- Oplevering in overleg, kan snel
- Niet-bewonersclausule, asbestclausule, as is where is en ouderdomsclausule van toepassing.

* Aan deze tekst kunnen geen rechten worden ontleend *

Kenmerken